• Skip to main content
  • Jump to navigation
  • Search
Globe

IE10 and below are not supported.

Google Chrome Mozilla Firefox

Contact us for any help on browser support

Figure 1: Perspective drawing from Hambledon Road

You are here:

  • Home
  • Hambledon Hub Development

Photo Gallery

Perspective drawing from Hambledon Road.
previous next
Perspective drawing from Hambledon Road.
Perspective drawing from Hambledon Road.
Perspective drawing from Breamore Street.
 Perspective drawing of Community garden/outdoor space.
Perspective drawing of ground floor undercover and outdoor space.
Perspective drawing of outdoor balcony.
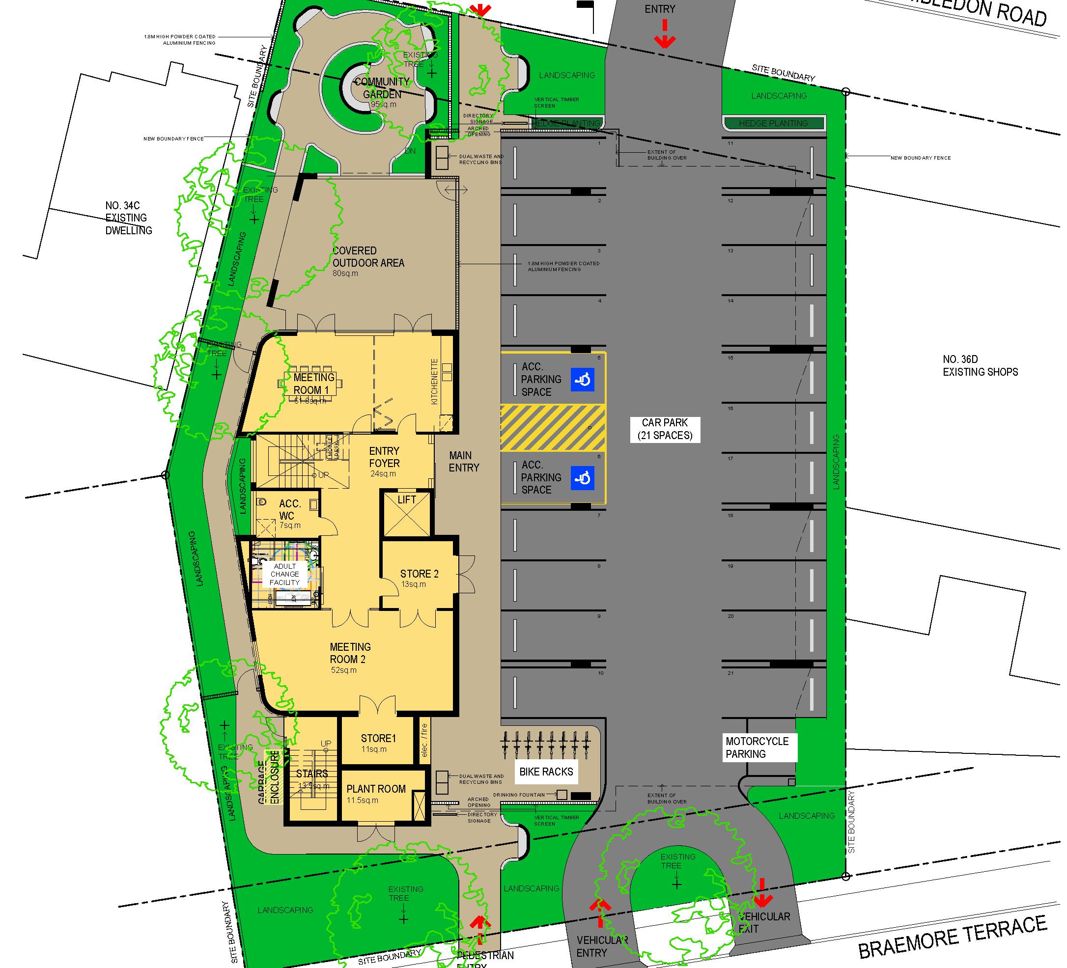
Ground floor building layout.
First floor building layout.